8 Kennedy
8 Kennedy Road, Hong Kong
2011~2016
5800s.m. GFA
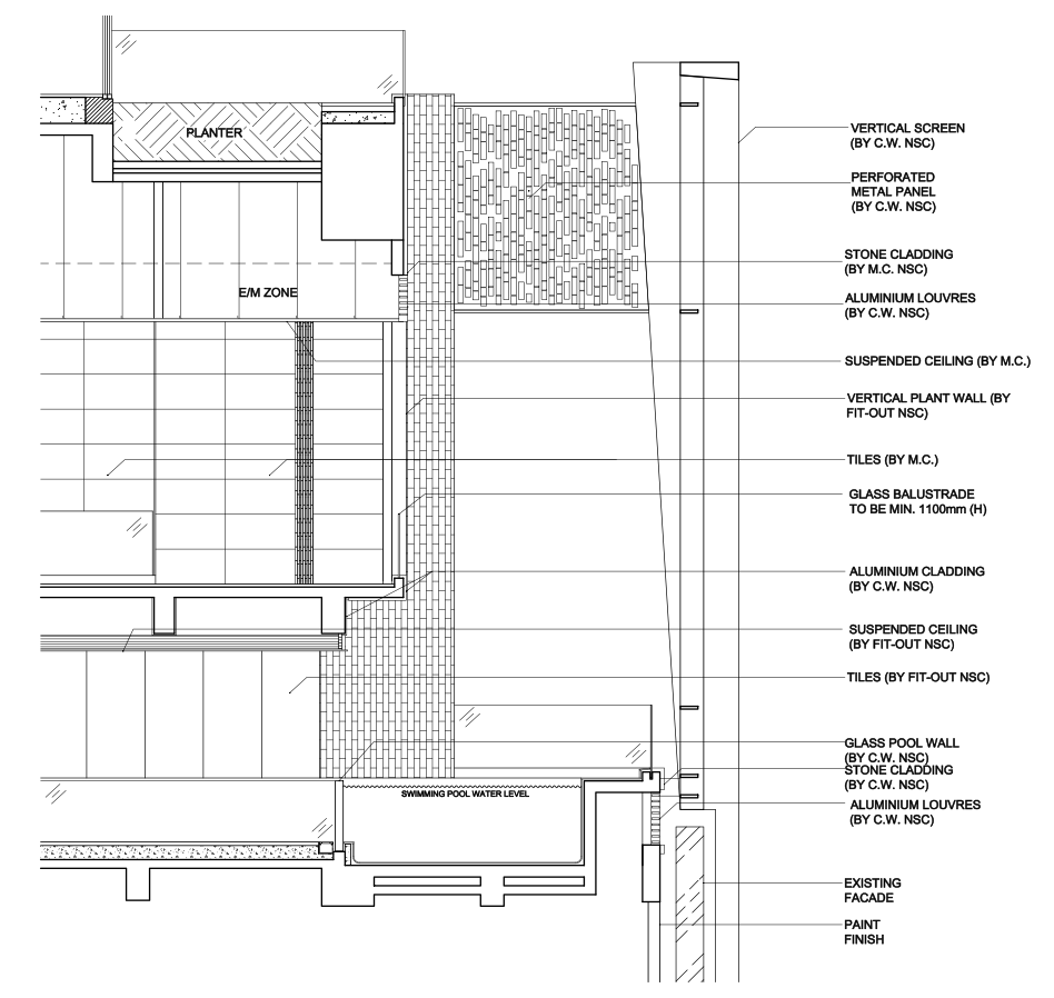
The original facade of the pair of pre-war row houses located on a terrace was preserved in this residential building re-development. The facade was reconstructed to exact details using original windows and doors. In order to mediate this facade with the new highrise part of the building, a picture frame element was introduced to frame off the old facade and increase the scale.
Building and finishes materials from the old buildings were conserved as much as possible and re-deployed in the interiors of the new building on every floor either in the original form or adapted to fit into the new space. There is no attempt to re-create the feel and space of the out-dated old buildings but hints of the old elements gave the occupants a sense of the history of the residence.












